Quadrilocale in vendita

Palermo, Corso dei mille - Corso Dei Mille
€ 175.000
Prezzo aggiornato
4 locali 4 locali
140 Mq 140 Mq
2 bagni 2 bagni

Quadrilocale in vendita

Palermo, Corso dei mille - Corso Dei Mille

Descrizione annuncio

LA ZONA: Su strada principale proprio su Corso dei Mille, pressi Guarnaschelli. Si tratta di una località strategica poiché ricca di numerosi servizi nelle immediate vicinanze, tra cui: supermercati, bar, panifici, scuole di vario ordine e grado, farmacia, attività di vario genere, fermate dell'autobus e fermate tram a pochi km, a due passi dal Centro Commerciale Forum Palermo.

I rendering integrati con le fotografie dell’immobile sono stati realizzati esclusivamente a scopo illustrativo con l’obiettivo di offrire una possibile visione di come l’appartamento potrebbe apparire a seguito di interventi quali tinteggiatura, inserimento arredi o sostituzione dei sanitari.

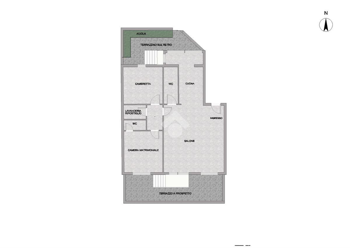
L'IMMOBILE: È posto al piano rialzato dello stabile. Si tratta di un contesto residenziale con posto auto assegnato. L'accesso al condominio avviene dal cancello automatico, direttamente sugli ampi spazi condominiali. L'ingresso all’immobile è direttamente sull’ampia zona living, caratterizzata da un ampio salone, munito di balcone, dal quale si accede al primo ampio terrazzo.La cucina attigua presenta, invece, una veranda annessa, da qui l’accesso al secondo terrazzo di pertinenza. La zona notte si compone di due comode camere nello specifico una cameretta ed una matrimoniale, quest’ultima con bagno in camera. Il bagno principale è munito di box doccia, ed è finestrato. Inoltre è presente una comoda lavanderia/ripostiglio. Per quanto riguarda alcuni dettagli dell'immobile: vi è riscaldamento autonomo con metano, porta blindata ed infissi in vetrocamera. Si presenta come la soluzione ideale per chi desidera entrare subito in una casa accogliente e pronta per essere abitata. L’immobile è stato recentemente ristrutturato con cura e gusto moderno, con materiali di qualità e finiture eleganti che uniscono estetica e funzionalità. Ogni ambiente è stato studiato per offrire comfort, luminosità e praticità, creando uno spazio armonioso dove ogni dettaglio è già pronto per essere vissuto. Gli spazi esterni, inoltre, attribuiscono all’appartamento funzionalità rappresentando al contempo degli ottimi spazi living. In uno dei due terrazzi è anche possibile posteggiare la propria auto . approfondire tramite appuntamento le reali possibilità in base agli spazi necessari).

Visionabile, previo appuntamento telefonico.

SEGUICI ANCHE SUI NOSTRI CANALI SOCIAL:

FACEBOOK: Gruppo Tecnocasa Palermo Messina Marine

INSTAGRAM: tecnocasastudiomessinamarine

Mostra tutto

Nelle vicinanze

Trasporto pubblico Trasporto pubblico
Trasporto pubblico
820 m
stazione di Palermo Brancaccio
stazione di Palermo Brancaccio
2,1 Km
Laudicina
Laudicina
610 m
Roccella
Roccella
680 m
Messina Marine - Bandita
Messina Marine - Bandita
800 m
Ricariche auto elettriche Ricariche auto elettriche
T.F. Car Service Palermo | EnelX
1,9 Km
Scuole Scuole
Scuola Elementare E Materna Nino Bixio
1,7 Km
1° Circolo Didattico Villabate - Plesso "Don Milani"
2,3 Km
Scuola Media Inferiore Franchetti
3,0 Km
Farmacia Farmacia
Calì
830 m
Di Figlia
1,2 Km
Caporale
1,8 Km
Farmacia Ganguzza
2,6 Km
Farmacia Europa
2,9 Km
Supermercati Supermercati
Supermercati
170 m
Ipercoop
350 m
Conad
860 m
Eurospin brancaccio
1,7 Km
Simply Market
1,8 Km
Negozi Negozi
h&m
390 m
China j j
980 m
China Town
1,5 Km
Rosé Mode
2,0 Km
Quick
2,2 Km
Bar Bar
Bar
800 m
Camilleri
2,3 Km
Crazy Bar
2,5 Km
Capitano
2,7 Km
Ristoranti Ristoranti
Il Campanile d'oro
870 m
Minichello Frutti di Mare
1,7 Km
A Ferrovia
2,8 Km
Ferro di Cavallo 2
2,9 Km
Mordi e Fuggi
2,9 Km
Mostra tutto

Caratteristiche

Rif.:
61182230
Piano:
Rialzato di 2
Totale piani:
2
Posti auto:
1
Balconi:
2
Terrazzi:
2
Mostra tutto
Prezzo Prezzo
€ 175.000
Rata mutuo Rata mutuo
€ 829 / mese
Spese annue Spese annue
€ 360
Proponi il tuo prezzoProponi il tuo prezzo

Classe Energetica

G
G
G
G
G
G
G
G
G
EP globale non rinnovabile:
20.27 kW h/m² anno
EP globale rinnovabile:
35.74 kW h/m² anno
EP invernale del fabbricato:
EP estiva del fabbricato:
Anno di costruzione:
1980
Riscaldamento:
Autonomo
Tipo impianto:
A radiatori
Tipo alimentazione:
Metano

Prezzo ridotto di €1 (3%%)

Ti interessa visionare l'immobile?

Fissa un appuntamento  Fissa un appuntamento

Richiedi informazioni

Clicca su Leggi per aprire l'informativa
* Questi campi sono obbligatori

Calcola il tuo mutuo

Semplice e senza impegno
Anticipo

( % )
Mutuo

( % )

pochi semplici passi

inserisci i tuoi dati
Questionario completato
Grazie per aver richiesto un appuntamento senza impegno con un nostro Consulente del Credito e Assicurativo.

Hai inserito correttamente tutti i dati necessari e a breve riceverai una e-mail con un link da convalidare per inviare i tuoi dati.
Affiliato
Studio Messina Marine Sas
Via Galletti, 43 90121 Palermo (PA)

Il nostro staff


  • Giuseppe Gianluca Gruppillo
    Affiliato

  • Maria Concetta Lombardo
    Collaboratrice

  • Kevin Lo Nardo
    Collaboratore

  • Miriam Parello
    Coordinatrice
Via Galletti, 43 90121 Palermo (PA)
Zona: Messina Marine- Forum- Guarnaschelli - Bandita - Acqua dei Corsari - Pomara
Mostra su mappa
Orari: dal lunedì al venerdì 09:00/13:00 15:30/19:30; sabato dalle 09:00 alle 13:00
Affiliato
Studio Messina Marine Sas
Via Galletti, 43 90121 Palermo (PA)

2026 Tecnocasa Franchising S.p.A. - P. IVA 08365160152 - Via Monte Bianco 60/A 20089 Rozzano (MI). Ogni agenzia ha un proprio titolare ed è autonoma. Privacy policy | Policy utilizzo | Cookie policy